標準孔板流量計安裝說明
西安華恒儀表制造有限公司是掌握流量計、壓力變送器、密度計、液位計核心技術的儀表生產廠家。主要生產流量計/壓力變送器/密度計/液位計OEM(代工),擁有自主的研發團隊和生產線。可以自主研發設計滿足各行業、各環境下的高精度流量計。今天和大家分享一下標準孔板流量計安裝說明。
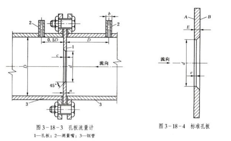
1.標準孔板流量計有孔板、 取壓嘴和鋼管組成, 安裝過程中, 應注意孔板的安裝方向, 具體如圖所示。

2.標準孔板安裝要求
(1) 標準孔板上游側的測量管長度為 10D, 下游側的長度為 4D。
(2) 測量管內必須滿足表面清潔, 無凹陷和沉淀物, 相對粗糙度 K/D 應少于或等于 0.001。
(3) 標準孔板上下游所需直管長度不得小于以下要求:

(4) 測量管長度之外的直管段內表面的粗糙度 K/D 小于或等于0.001。
(5) 在測量管中安裝孔板時, 開孔周限于測量管軸線同軸, 標準孔板上游側端面與管道軸線垂直, 垂直度小于1%。
相信通過以上標準孔板流量計安裝說明的全部容,能夠使大家有一個較為全面的認識,對選擇合適的液體流量計有所幫助。如有疑問,可以隨時聯系我們。
上一篇:孔板流量計各項應用實例 下一篇:標準孔板流量計簡單介紹
最新資訊文章
- 流速式流量計的安裝注意也需要一定講究
- 氣體渦街流量計在測量蒸汽爐煤氣時出現問題及解決方法
- 孔板流量計測量瓦斯抽放流量時的安裝要求及取壓方式
- 測蒸汽時應選孔板流量計還是渦街流量計?
- 差壓孔板流量計出現故障時 不妨試試以下方法
- 天然氣流量計管道調試故障原因分析
- 插入式流量計的原理與分類
- 如何消除污水流量計工頻干擾和零點漂移
- 孔板流量計:自動化設計廢鋼鐵行業轉行井噴
- 前后直管段太短時孔板流量計應該如何安裝
- 德爾塔巴流量計的安裝要求以及注意
- 高壓孔板流量計在冷凍水檢測中的注意要點及解決方案介紹
- 選型蒸汽流量計時所需要注意的問題介紹
- 導致孔板流量計誤差變大的原因分析
- 孔板流量計測量蒸汽產生誤差的原因分析及解決辦法
- 深入探究影響孔板流量計進行煤氣流量計量的因素
- 質量流量計和控制器引擎蓋下的主要組件詳細介紹
- 淺析階躍溫度及水流速度對金屬管浮子流量計的影響
- 選擇流量計時會犯的10個常見錯誤以及如何避免錯誤
- 運用標準計量器具校正金屬管浮子流量計
- 如何正確安裝蒸汽流量計
- 天燃氣流量計的功能介紹
- 蒸汽流量計運行工作前的準備和調試
- 限流孔板流量計作為流量測量元件的使用條件有哪些
- 環形孔板流量計在各介質中的應用













